Restaurant at Barcelona's Zoo
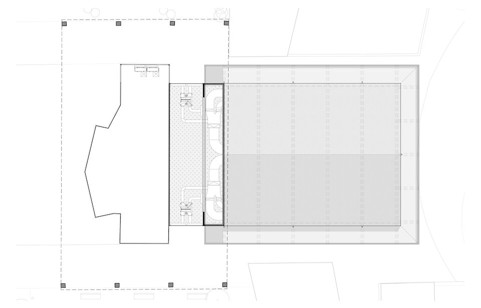
The existing Barcelona’s Zoo Restaurant Building is composed of two independent constructions. The first, a concrete structure with an arched roof, accommodates the kitchen, services and washrooms. The second, a timber structure enclosed by textile rolling shutters, houses the serving area and tables.
The project commissioned by Zoo’s administration replaces the timber structure by a metallic one that meets Building standards, Fire safety regulations, thermal and energy efficiency requirements.



Existing structure

Proposed structure



Construction detail
-
Role Conceptual work, design coordination, construction documents, 3d rendering and detailing
-
For UMA Projectes
-
Date 2017 – 2018
-
Type Architecture, Renovation, Interiors
-
Location Barcelona, Spain
-
Client Barcelona City’s Government
-
Project Leaders Jordi Pascual (principal) and Cristian Perez (principal)
Up Next: