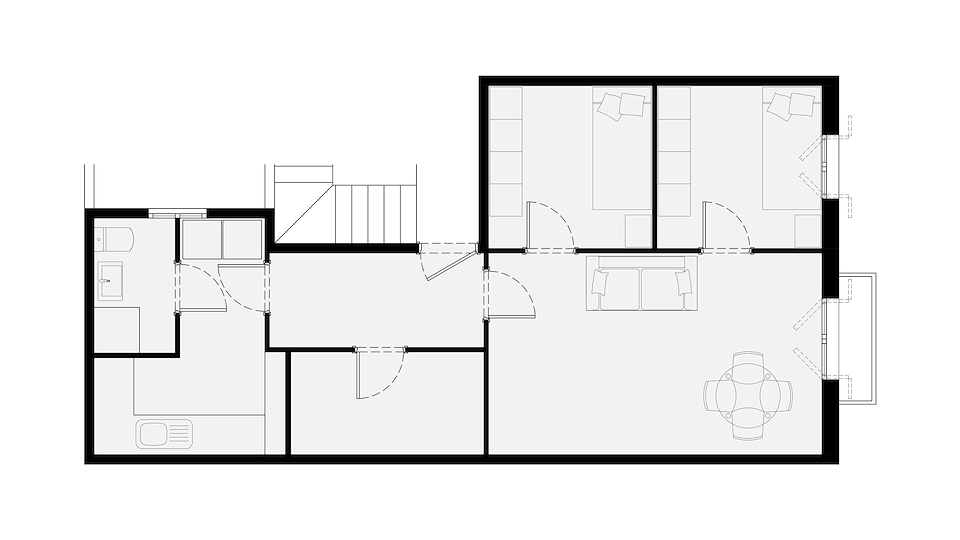
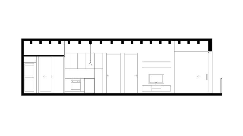
Girona Apartment
Couple’s vacation apartment in Girona, Spain












-
Role Conceptual work, design coordination, construction documents and detailing
-
For UMA Projectes
-
Date 2015
Up Next:
Couple’s vacation apartment in Girona, Spain
Role Conceptual work, design coordination, construction documents and detailing
For UMA Projectes
Date 2015
Up Next: